楔形流量計是一種差壓式流量儀表,它是利用在密閉管道中能量相互轉換的伯努利定律,即:在穩定流體場合中,管道中的流速與差壓的平方根成正比。楔形流量計是八十年代開始開始逐步走向實用的一種新型流量計,其檢測件是一個V字形楔塊(又稱楔形節流件),它的圓滑頂角朝下,這樣有利于含懸浮顆粒的液體或粘稠液體順利通過,不會在節流件上游側產生滯流。流體通過楔形流量計時,由于楔塊的節流作用,在其上、下游側產生了一個與流量值成平方關系的差壓,將此差壓從楔塊兩側取壓口引出送至差壓變送器轉變為電信號輸出,再經專用智能流量積算儀運算后,即可顯示流量值。
楔形流量計適用于包括磨損性流體在內的大多數流體。精度可達±0.5%。堅固的結構,實用的設計,簡單的操作原理保證了它±0.2%的高重復性。楔式流量計可以滿足用戶特殊的高壓和高溫要求。楔式流量計可配帶溫度傳感元件以及變送器一同提供質量流量測量的*佳方案。楔型流量計特別適用于傳統流量儀表很難測量的流體,如燃料油、廢水、煤焦油、鐵礦漿、油漿、原油、碳黑、溶液、兩相流體等流量的測量。獨特的設計都能保證流量與差壓的平方根成正比。即使流體黏度高達3000厘泊也不會影響楔式流量計的精度。在雷諾數低至300時,楔式流量計的流量系數也可保持穩定。楔型流量計相比孔版及噴嘴有較低的**壓力損失。楔型流量計可**應用于石油、煉化、化工、天然氣、冶金、電力、制藥等領域中各種液體、氣體、天然氣及蒸汽體積或質量流量的測量和計量。
技術參數:
1、測量精度: ±1.0%~±1.5%
2、*低流速:0.01m/s。
3、使用壽命:可長達十年以上。
4、量程比≥10:1
5、雷諾數系數使用范圍:下限300,上限達1×106以上。
6、測量液體粘度上限:500MPa?S。
7、工作壓力范圍:-0.1~6.4MPa。
8、工作溫度范圍:-50~400℃。
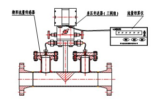
流量傳感器的檢測件是楔形孔板,它是一塊V形節流件,它的圓形頂角朝下,這樣有利于含懸浮顆粒(粉塵、泥沙及其它固體顆粒)流體和高粘度液體流過時在節流件上游側不會產生滯流,也不會在節流體上、下游側發生固體顆粒或粘稠物的積存,從而確保楔形流量傳感器長期運行穩定性:±0.1FS%Y,這樣高的長期運行精度在流量測量領域是迄今少見的。楔形流量傳感器的結構如圖1所示。
一體化智能型楔形流量計的組成如圖2所示。它由一體化楔形流量計變送器和人工智能流量運算器兩部分組成。其中一體化楔形流量變送器由楔形流量傳感器、轉接板和差壓變送器構成。
一體化智能型楔形流量計的工作原理是:當充滿管道的流體流經楔形孔板時,其下游側動壓增加,靜壓減小,由差壓變送器在楔形孔板下游側測出流體的差壓,并將差壓信號轉換為4~20mA.dc電流信號輸出,此信號經過人工智能流量運算器處理后,其示值為流量值。
結構形式:
楔形流量計按其組裝方式分為一體型和分離型,按其連接方式分為法蘭連接、焊接連接、螺紋連接及對夾式連接,按其取壓方式分為普通取壓、法蘭密封取壓等結構。

楔形流量計具有流量系數、非線性誤差、溫度變化、密度變化等參數的修正功能;測量精度可達0.5%;可具有現場顯示和標準電流信號(4~20mA DC)輸出,可方便地用于自動控制系統或與計算機聯網,進行流量或其他參數的自動調節和控制。
楔形流量計流量方程: 
式中 qv----體積流量計,m3/s
C------流出系數;
ε-----可膨脹系數;
m------節流面積比;
D------管道內徑,m;
△p------差壓,pa;
ρ------被測介質密度,kg/m3
測量原理的安裝要求

表1 測量液體時的流量范圍
型 號 | 公稱通徑DN(mm) | 楔形比H/D | 流量范圍(m3/h) |
015 | 15 | 0.2,0.3,0.4,0.5 | 0.11~2.7 |
020 | 20 | 0.2,0.3,0.4,0.5 | 0.2~4.8 |
025 | 25 | 0.2,0.3,0.4,0.5 | 0.3~7.4 |
032 | 32 | 0.2,0.3,0.4,0.5 | 0.5~12.2 |
040 | 40 | 0.2,0.3,0.4,0.5 | 0.8~19 |
050 | 50 | 0.2,0.3,0.4,0.5 | 1.3~29.7 |
065 | 65 | 0.2,0.3,0.4,0.5 | 2.2~50.1 |
080 | 80 | 0.2,0.3,0.4,0.5 | 3.3~76 |
100 | 100 | 0.3,0.4,0.5 | 8.2~118.7 |
125 | 125 | 0.3,0.4,0.5 | 12.8~185.5 |
150 | 150 | 0.3,0.4,0.5 | 18.4~267.1 |
200 | 200 | 0.3,0.4,0.5 | 32.7~474.8 |
250 | 250 | 0.3,0.4,0.5 | 51.2~741.8 |
300 | 300 | 0.3,0.4,0.5 | 73.8~1068.2 |
表2 測量氣體時的流量范圍
型 號 | 公稱通徑DN(mm) | 楔形比H/D | 流量范圍(m3/h) |
015 | 15 | 0.2,0.3,0.4,0.5 | 1.2~19.1 |
020 | 20 | 0.2,0.3,0.4,0.5 | 2.3~33.9 |
025 | 25 | 0.2,0.3,0.4,0.5 | 3.5~53 |
032 | 32 | 0.2,0.3,0.4,0.5 | 5.8~86.8 |
040 | 40 | 0.2,0.3,0.4,0.5 | 9.0~135.7 |
050 | 50 | 0.2,0.3,0.4,0.5 | 14.1~212 |
065 | 65 | 0.2,0.3,0.4,0.5 | 23.9~358.2 |
080 | 80 | 0.2,0.3,0.4,0.5 | 36.2~542.6 |
100 | 100 | 0.3,0.4,0.5 | 56.5~847.8 |
125 | 125 | 0.3,0.4,0.5 | 88.3~1324.5 |
150 | 150 | 0.3,0.4,0.5 | 127.2~1907.6 |
200 | 200 | 0.3,0.4,0.5 | 226.1~3391.2 |
250 | 250 | 0.3,0.4,0.5 | 353.3~5298.8 |
300 | 300 | 0.3,0.4,0.5 | 508.7~7630.2 |
注:表1、表2的流量范圍是指工作狀態下的體積流量。

楔形流量計安裝注意事項:
1、一般楔形流量傳感器有前后測量管,可在水平或垂直安裝及使用。當傳感器在垂直管道上安裝時,流體應自上而下流動。測量液體時應注意使差壓變送器能排除氣泡,以免引起儀表零點漂移;
2、傳感器上下游側應配置直管段,管道內壁應光滑、清潔、無附著物,直管段長度要求請詳細閱讀說明書。
3、水平安裝時,楔式差壓元件應與管道中心線成90°。對于垂直安裝,由于取壓點之間輕微的靜壓影響必須注意差壓變送器調零。




